0158 Oslo
Akersgata 43
Kontor
Oslo sentrum - Innflyttingsklart kontor rett ved Stortinget / Karl Johans gate
Fasiliteter
Bredbåndstilknytning
Heis
Om eiendommen
Akersgata 43 ligger svært sentralt i Oslo sentrum ved Karl Johans gate. Fra eiendommen er det kun noen minutters gange til Nationaltheatret stasjon og Oslo S, samt Egertorget og Stortinget t-banestopp som er rett utenfor døren.
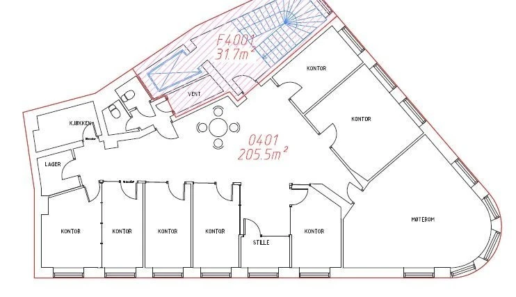
Eiendommen har en flott buet fasade, det ledige kontorlokalet ligger i 4.etg med store vindusflater ut mot Akersgaten og Grensen. Kontorarealet er på 241 kvm brutto, 205 kvm netto. Lokalet kan overtas som det er eller tilpasset ny leietakers ønsker, nåværende planløsning består av enkeltkontorer, møterom, sosiale soner, kjøkken og to toaletter - se plantegning.
Beliggenhet
Interessemelding
Send inn en interessemelding for å få mer informasjon om lokalet og om det vil passe deg!
Thank you! Your submission has been received!
Oops! Something went wrong while submitting the form.
Har du spørsmål?
Våre eksperter er her for å hjelpe deg,
alltid 100% gratis!








