0164 Oslo

C.J Hambros plass 5

Areal
137 - 380 m²
Hyre
Adgang
Med en gang
Kontor

Oslo sentrum ved Tinghuset - Lyse, innflyttingsklare kontorer fra 137 til 380 kvm.

Fasiliteter

Bredbåndstilknytning
Heis

Om eiendommen

C. J. Hambros plass 5 ligger sentralt i Oslo sentrum vis a vis Tinghuset. Her er det umiddelbar nærhet til offentlig kommunikasjon som gjør det enkelt komme seg til kontoret for både ansatte og besøkende. Det er kun 5 minutters gange til Nationaltheatret stasjon med alt av offentlig kommunikasjon samt trikkeholdeplass rett utenfor kontordøren.  

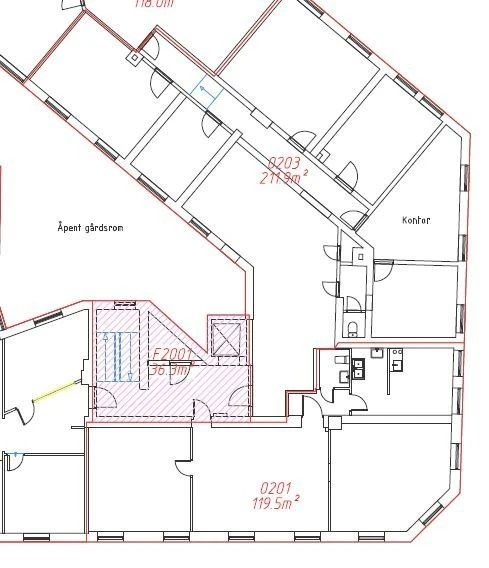
Arealnr 201 og 203 er på til sammen 331,4 kvm netto og 380,5 kvm brutto. Lokalene kan leies samlet eller hver for seg.

  • Arealnr 0201 er på 119,5 netto kvm / 137,2 brutto kvm
  • Arealnr 0203 er på 211,9 netto kvm / 243,3 brutto kvm


Kontorlokalet består av kontorer i ulike størrelser, møterom, kjøkken med spiseplass, tekjøkken og sosiale soner. Lokalet har store vinduer med utsikt ut mot C.J. Hambros plass og Tinghuset.

Eiendommen har presentabelt inngangsparti og heis. Det siste året har eiendommen blant annet fått en fasadeoppussing, nye vinduer og nytt ventilasjonsanlegg,

Beliggenhet

Interessemelding

Send inn en interessemelding for å få mer informasjon om lokalet og om det vil passe deg!

Thank you! Your submission has been received!
Oops! Something went wrong while submitting the form.

Har du spørsmål?

Våre eksperter er her for å hjelpe deg,
alltid 100% gratis!