Peter Egges plass 2
7011 TRONDHEIM

Peter Egges plass 2
Areal
6 355 m²
Totalt lokaler
3
Byggeår
1992
Energiklasse
Lokaler i Peter Egges plass 2
Fasiliteter
Om eiendommen
På Peter Egges plass 2 tilbys et modernt næringsbygg på totalt ca. 6 355 kvm med god standard, effektive arbeidsarealer og et attraktivt fellesareal. Eiendommen er oppført i 1992 og gir profesjonelle rammer for virksomheter som ønsker representative lokaler til leie i Trondheim, med tilgang til blant annet kantine, treningsrom, møterom og gode parkerings- og sykkelmuligheter.
Moderne kontorfasiliteter med gode møteplasser
Bygget fremstår som et funksjonelt og oppgradert kontor- og næringsbygg med store vindusflater som gir godt dagslys inn i lokalene. Innvendig finner man lyse og tidsriktige arealer med møteromsløsninger tilpasset moderne arbeidsformer. Glassvegger og åpne soner bidrar til en transparent og samarbeidsorientert atmosfære. Felles atrium fungerer som en sosial møteplass med sittegrupper, uformelle arbeidsstasjoner og gode muligheter for både korte møter og pauser i løpet av arbeidsdagen.
Innbydende fellesarealer og kantine
Eiendommen har et lyst og luftig inngangsparti med glasstak, grønne planter og gjennomtenkt belysning som gir et representativt førsteinntrykk for ansatte og besøkende. Her er det flere soner med sittegrupper, høye bord og loungemøbler som skaper en hyggelig ramme rundt arbeidsdagen. Kantinen ligger praktisk tilknyttet fellesarealene og gir leietakerne et naturlig samlingspunkt for lunsj og uformelle møter, samtidig som den bidrar til et levende miljø i bygget.
Fasiliteter som støtter en aktiv og effektiv arbeidshverdag
Peter Egges plass 2 er utstyrt med fasiliteter som gjør eiendommen særlig attraktiv som næringslokale. Her finnes treningsrom med moderne utstyr, som gir ansatte mulighet til å trene før, etter eller i løpet av arbeidsdagen. I tilknytning til dette er det garderober, dusj og garderobeskap, som legger godt til rette for syklister og andre som ønsker en aktiv reisevei til jobb. Eiendommen har også garasje/plasser for bilparkering, egen sykkelparkering og heis til etasjene, noe som gir enkel tilgjengelighet for alle brukere.
Fleksible arealer for ulike virksomheter
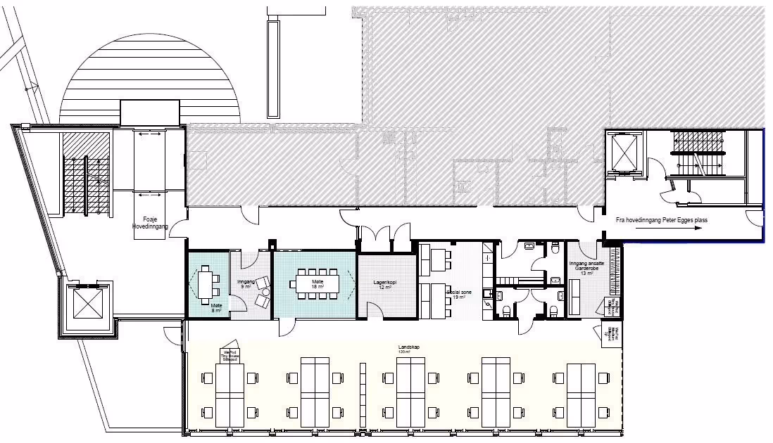
Med et samlet areal på ca. 6 355 kvm gir bygget rom for både større og mellomstore leietakere. Planløsningene kan tilpasses ulike behov, enten det er tradisjonelle cellekontor, åpne kontorlandskap eller kombinasjoner med prosjekt- og møteromssoner. De effektive arealene, kombinert med gjennomgående god standard og praktiske fellesfunksjoner, gjør Peter Egges plass 2 til et attraktivt valg for virksomheter som søker sentralt plasserte kontorlokaler til leie i Trondheim.
Beliggenhet
Peter Egges plass 2 har en svært sentral beliggenhet i Trondheim, med god kollektivdekning via holdeplasser som Søndre gate og Bakkegata like i nærheten, noe som gjør det enkelt for pendlere å komme seg til og fra. Området er et etablert bysentrum med et bredt utvalg av kafeer og restauranter i gangavstand, godt egnet som lunsjområde, samt flere treningssentre innen kort rekkevidde og dagligvarebutikk i nærheten, slik at ansatte har enkel tilgang til både servicetilbud og hverdagsgjøremål.
Ofte stilte spørsmål
Lokalene på Peter Egges plass 2 har månedlige leiepriser fra 85 000 kr til 245 000 kr, avhengig av størrelse og fasiliteter.
Det er 3 ledige lokaler tilgjengelig på Peter Egges plass 2. Disse er ledige nå eller innen de neste 6 månedene.
Eiendommen på Peter Egges plass 2 tilbyr blant annet garasje/p-plass, kantine, sykkelparkering, møtesrom og heis. Se hele listen over fasiliteter på denne siden.
Lokalene på Peter Egges plass 2 varierer i størrelse fra 348 m² til 1 010 m².
Du kan enkelt booke en visning ved å klikke på "Book visning" på et av lokalene, eller sende en forespørsel via kontaktskjemaet på denne siden. Vi tar kontakt for å avtale tid.


