0155 Oslo
Storgata 3
Kontor
Kontorlokaler midt i Oslo sentrum
Fasiliteter
Bredbåndstilknytning
Heis
Om eiendommen
Midt i Storgata har vi ledige kontorlokaler. Beliggenheten til eiendommen gjør at det er enkelt for både ansatte og besøkende å komme seg til kontoret. Det er kun 4 minutters gange til Oslo S og Jernbanetorget med alt av offentlig kommunikasjon. Stortorvet og Karl Johans gate ligger kun 190 meter bortenfor eiendommen.
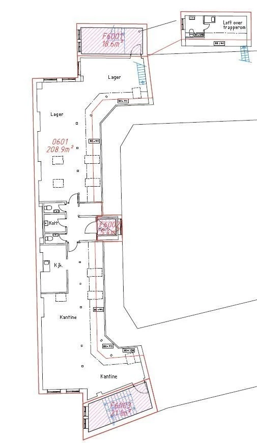
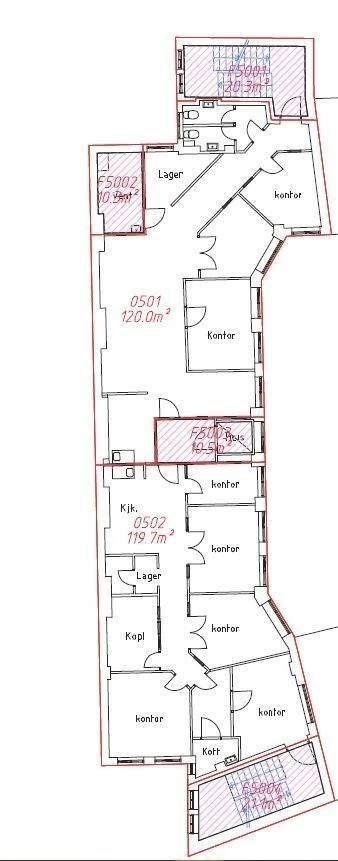
Fra arealnr 502 er det trapp opp til kontoret i 6.etg. Lokalene kan leies hver for seg eller samlet.
- Lokalet 502 er på 119,7 kvm netto og 208,9 kvm brutto.
- Lokalet 502 i 6. etasje er på 119,7 kvm netto og 263,3 kvm brutto
Beliggenhet
Interessemelding
Send inn en interessemelding for å få mer informasjon om lokalet og om det vil passe deg!
Thank you! Your submission has been received!
Oops! Something went wrong while submitting the form.
Har du spørsmål?
Våre eksperter er her for å hjelpe deg,
alltid 100% gratis!








