Vetrlidsallmenningen 5
Attraktiv og sentralt kontorlokale til leie i Vetrlidsallmenningen
Fasiliteter
Om eiendommen
Beliggenhet
Vetrlidsallmenningen 5 har en meget sentral og attraktiv beliggenhet et steinkast fra Bryggen i Bergen sentrum. Eiendommen ligger mellom Fløibanen og Torget og nærområdet består hovedsakelig av butikker, restauranter og kontorer.
Eiendommen ble oppført i 1870. Opprinnelig var det bygget i nygotisk stil, men fasadene på huset ble bygget om i 1930 årene til funksjonalisme – i kontrast til naboeiendommene.
Bygget ble malt og alle vinduene skiftet i 2024.
Det er butikk i plan U og 1 etasje og kontorer i de øvrige etasjene.
Adkomst
Eiendommen ligger i gaten på vei opp til Fløybanen. Eiendommen har flott utsikt mot bryggen og mot fjellene.
Innhold
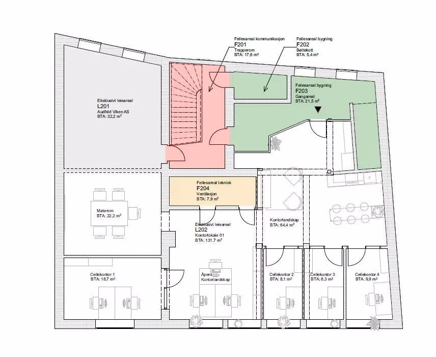
Lokalet fremstår i dag som et rålokale, men skal totalrenoveres så lokalet blir lyst og moderne.Leietaker kan være med å tilpasse lokalet etter deres ønsker og behov. Vedlagte tegninger er mulig planløsning på hvordan lokalet kan bli.
Beliggenhet
Interessemelding
Send inn en interessemelding for å få mer informasjon om lokalet og om det vil passe deg!
Har du spørsmål?
Våre eksperter er her for å hjelpe deg,
alltid 100% gratis!








