Damsgårdsveien 90
5058 BERGEN

Damsgårdsveien 90
Totalt lokaler
2
Lokaler i Damsgårdsveien 90
Fasiliteter
Om eiendommen
Næringslokale i Damsgårdsveien 90 i Bergen med god eksponering på bakkeplan og direkte adkomst fra gateplan. Eiendommen tilbyr både kontorlokaler og arealer egnet for handel/servicetjenester, med tilhørende garasjeanlegg og sykkelparkering som gjør det praktisk for både ansatte og besøkende.
Moderne parkeringsanlegg og sykkelparkering
Eiendommen har tilgang til et moderne garasjeanlegg med lyse, ryddige parkeringsarealer. Bildene viser faste parkeringsplasser med ladepunkter for elbil langs veggen, noe som gir gode forhold for ansatte og kunder som kommer med bil. I tillegg er det tilrettelagt for sykkelparkering, slik at også syklende har en trygg og praktisk løsning. Kombinasjonen av garasje/P-plass og sykkelparkering gjør Damsgårdsveien 90 til et attraktivt næringslokale å leie for bedrifter som vektlegger enkel adkomst og gode transportmuligheter.
Profilert næringslokale med god synlighet
Fasadebildet viser et moderne bygg med store vindusflater mot gaten og eksisterende næringsaktører på bakkeplan. Dette gir svært gode eksponeringsmuligheter for virksomheter som ønsker synlighet mot forbipasserende trafikk. De store glassfeltene egner seg godt for profilering, skilting og utstillingsflater, og bidrar samtidig til lyse og trivelige lokaler innendørs. Næringsarealene i Damsgårdsveien 90 fremstår som et attraktivt valg for leietakere som søker et sentralt beliggende næringslokale i Bergen med god tilgjengelighet og profesjonell ramme rundt virksomheten.
Beliggenhet
Eiendommen i Damsgårdsveien 90 har en sentral beliggenhet i Bergen med god kollektivdekning, med holdeplasser som Gyldenprisveien og Lien nord i gangavstand, noe som gir pendlere enkel adkomst med buss. Området er et etablert nærings- og boligområde der ansatte har kort vei til flere kafeer og restauranter som gjør dette til et attraktivt lunsjområde, samt dagligvarebutikker og et bredt utvalg treningssentre innenfor komfortabel gang- og sykkelavstand.
Kollektivtransport
Bergen busstasjon
1.1 km · 13 min gange
Gyldenprisveien
54 m · 1 min gange
Florida
835 m · 10 min gange
Ofte stilte spørsmål
Det er 2 ledige lokaler tilgjengelig på Damsgårdsveien 90. Disse er ledige nå eller innen de neste 6 månedene.
Eiendommen på Damsgårdsveien 90 tilbyr blant annet garasje/p-plass og sykkelparkering. Se hele listen over fasiliteter på denne siden.
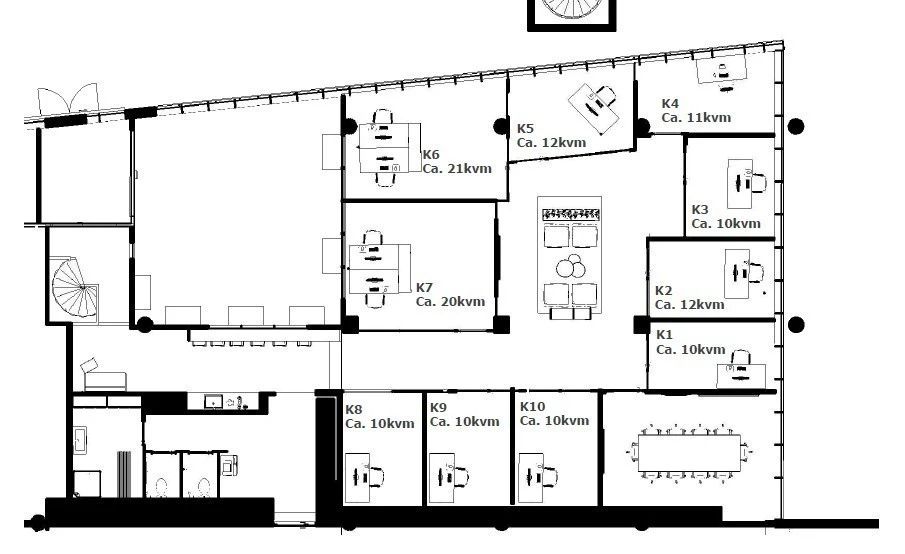
Lokalene på Damsgårdsveien 90 varierer i størrelse fra 62 m² til 395 m².
Du kan enkelt booke en visning ved å klikke på "Book visning" på et av lokalene, eller sende en forespørsel via kontaktskjemaet på denne siden. Vi tar kontakt for å avtale tid.
Damsgårdsveien 90 ligger i BERGEN med god tilgang til kollektivtransport. Nærmeste holdeplasser er Bergen busstasjon (1.1 km) og Gyldenprisveien (54 m).
Andre lokaler i nærheten

5013 BERGEN







