Hoffsveien 21
0275 OSLO

Hoffsveien 21
Areal
5 897 m²
Totalt lokaler
1
Byggeår
1986
Energiklasse
Lokaler i Hoffsveien 21
Fasiliteter
Om eiendommen
Hoffsveien 21 er en velholdt næringseiendom på totalt ca. 5 897 kvm i Oslo, med effektive kontorlokaler og sentral beliggenhet. Bygget fra 1986 fremstår i god teknisk stand, med moderne fellesfasiliteter som kantine med møteromsfasiliteter, garasje og innendørs sykkelparkering, garderobeanlegg med dusj, heis og hyggelige uteplasser – et attraktivt næringslokale for bedrifter som vil leie funksjonelle og representative arealer.
Moderne kontorfasiliteter og god teknisk standard
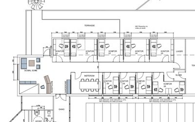
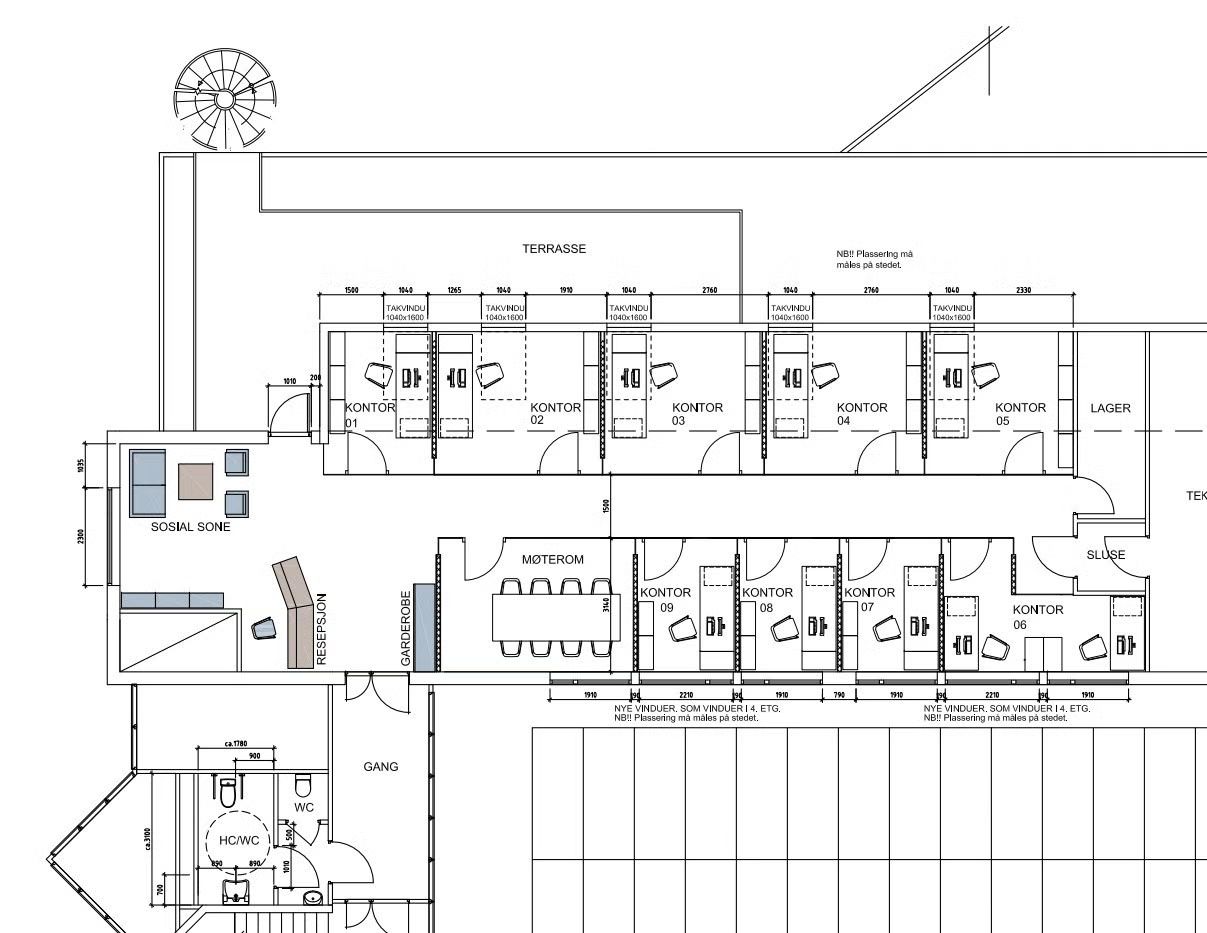
Kontorlokalene i Hoffsveien 21 er utformet for effektiv arealbruk, med fleksible planløsninger som egner seg for både åpne landskap og cellekontorer. Store vindusflater og lyse materialvalg gir et trivelig arbeidsmiljø, mens oppgraderte tekniske anlegg bidrar til stabil og driftssikker hverdag. Bygget driftes av et eget forvaltningsselskap som holder til i nabobygget, noe som sikrer tett oppfølging og høy tilgjengelighet både fra administrasjonen og dedikert vaktmester for leietakerne.
Lys kantine med møteromsfasiliteter
Eiendommens store styrke er den innbydende kantinen, som ligger i et lyst atrium med glasstak og god takhøyde. Her kombineres servering og uformelle soner med fleksible sittegrupper, slik at arealet også fungerer godt til interne samlinger og sosiale møteplasser. Kantinen har integrerte møteromsfasiliteter, som gjør det enkelt å arrangere alt fra korte prosjektmøter til større presentasjoner uten å forlate bygget.
Fasiliteter som støtter en aktiv arbeidsdag
Hoffsveien 21 er tilrettelagt for ansatte som både kjører bil og reiser miljøvennlig. Det er god parkeringsdekning i garasje og på plasser ved eiendommen, samtidig som det er kort avstand til kollektivtrafikk. For syklister tilbys innendørs sykkelparkering og et godt garderobeanlegg i underetasjen med garderobeskap og dusjer. Uteområdene er pent opparbeidet med grøntarealer og sitteplasser, som gir gode pauserom i grønne omgivelser til tross for den sentrale beliggenheten.
Beliggenhet
Hoffsveien 21 ligger i et etablert næringsområde på Hoff i Oslo med sentral beliggenhet og god kollektivdekning, der både trikk og buss er tilgjengelig fra nærliggende holdeplasser som Hoff og Hoff terrasse, noe som gjør det enkelt for pendlere å komme seg til og fra. I gangavstand finnes flere kafeer og lunsjsteder, dagligvarebutikker og et godt utvalg treningssentre innen kort rekkevidde, slik at ansatte har enkel tilgang til både servicetilbud og trening i løpet av arbeidsdagen.
Kollektivtransport
Skøyen stasjon
650 m · 8 min gange
Montebello
906 m · 11 min gange
Hoff terrasse
40 m · 1 min gange
Hoff
346 m · 4 min gange
Ofte stilte spørsmål
Det er 1 ledig lokale tilgjengelig på Hoffsveien 21. Disse er ledige nå eller innen de neste 6 månedene.
Eiendommen på Hoffsveien 21 tilbyr blant annet kantine, garasje/p-plass, sykkelparkering, garderobeskap og dusj. Se hele listen over fasiliteter på denne siden.
Lokalene på Hoffsveien 21 er på 221 m².
Du kan enkelt booke en visning ved å klikke på "Book visning" på et av lokalene, eller sende en forespørsel via kontaktskjemaet på denne siden. Vi tar kontakt for å avtale tid.
Hoffsveien 21 ligger i OSLO med god tilgang til kollektivtransport. Nærmeste holdeplasser er Skøyen stasjon (650 m) og Montebello (906 m).
